--   |  设为首页

帮忙装修网

中山

[切换]

中山装修60平米房子,住出庭院别墅的感觉!

来自:中山帮忙装修网 日期:2022-08-10 15:30:07 208569 次 分享到:
导读:
孩子要上学买的学区房,建筑面积61平,套内面积50平,上海的6层老公房底楼,天井改造成花园。中山帮忙装修网公司分享。

微信图片_20220810142312.jpg

设计师夫妻的家,孩子要上学买的学区房,建筑面积61平,套内面积50平,上海的6层老公房底楼,天井改造成花园

微信图片_20220810143227.jpg

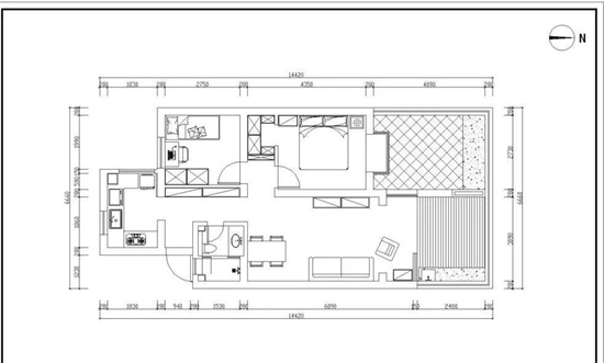
原始户型不是很好,厨房、客厅很小,花园从主卧进入不方便

微信图片_20220810143229.jpg

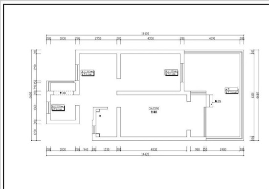
把原始客厅改成儿童房,主卧改成客厅,从客厅进入花园,动静分离

微信图片_20220810143517.jpg

入户的位置,内嵌了一个小鞋柜

微信图片_20220810143520.jpg

进门区域,迎面是一面橘色的黑板墙,上下都做了储物柜,下方储物柜兼具换鞋凳功能,上方可存放换季鞋

微信图片_20220810143523.jpg

进门右边过了过道之后是进入餐厅客厅区域

微信图片_20220810143526.jpg

做了地暖,选了软木地板,采暖效果比较好

微信图片_20220810143528.jpg

餐厅选的实木餐桌,一盏摇臂灯,吃饭的时候可以摇到餐桌上方,平时也可以摇到沙发上方

微信图片_20220810143530.jpg

餐厅还能改造成工作区,照明全部采用点光源,对于层高不高的老房子来说,舍弃吊灯、顶灯是一个比较好的选择

微信图片_20220810143533.jpg

把原本户型超大的卧室打通阳台后改造成餐客厅,和户外花园相连

微信图片_20220810143535.jpg

进门左侧的厨房面积不大,但功能齐全,角落用搁板利用,前面也用挂杆提高空间利用率,美观又实用

微信图片_20220810143537.jpg

小卫生间用浴帘替代隔断,壁挂式马桶,镜柜增加收纳储物

微信图片_20220810143539.jpg

利用过道端景内嵌了一个小型书柜,除了增加储物空间之外,也成了一处风景

微信图片_20220810143541.jpg

简洁的主卧,阳光很好

微信图片_20220810143551.jpg

主卧飘窗外就是天井一角,景色宜人

微信图片_20220810143553.jpg

儿童房位于主卧对面,选用的高低床,上面睡觉,下面活动区

微信图片_20220810143555.jpg

床的楼梯还带抽屉储物

微信图片_20220810143557.jpg

对面是宜家的儿童衣柜

微信图片_20220810143559.jpg

客厅和主卧都用了大面积的玻璃窗,增加采光的同时,也可以随时看到天井花园中的美景

微信图片_20220810143601.jpg

用防腐木分层设计,增加了花园空间的层次感

微信图片_20220810143604.jpg

围墙上装了红外警报装置,出门在外或者晚上的时候打开就行

微信图片_20220810143606.jpg

所有的照片并非是同一时期拍摄的,所以景色以及室内陈设也都会有改变

微信图片_20220810143608.jpg

设计师的理念是不希望装修好是超好的状态,而是住进去之后通过时间慢慢的增加房子的人文气息

微信图片_20220810143611.jpg

热爱生活的人,60平米的房子也能住出庭院别墅的感觉。

装修预算不够?快来申请装修贷款!月息低至2.5厘。帮忙装修网为解决业主的装修资金难题,特与银行合作推出“装修贷”,一站轻松办理:18824725983 吴先生

长按二维码关注"帮忙装修网",了解更多装修资讯↓↓↓

或拨打免费热线:13822775923

已成功招标53521