--   |  设为首页

帮忙装修网

中山

[切换]

中山新房装修把125m²三居变四居,简单淳朴

来自:中山帮忙装修网 日期:2022-04-29 15:25:40 208079 次 分享到:
导读:

本案是一套面积为125平米的三居室,户型方正规整,根据屋主需求,将三房改成了四房;屋主希望家是简单、淳朴的,不想要电视机,喜欢空间被书和植物包围。下面就来看设计师为屋主呈现的自然质朴日式风格小家吧!

图赏

20220421_164600_131.jpg

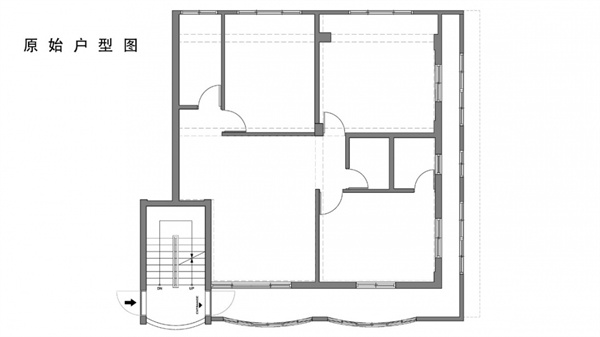
▲原始结构图

20220421_164600_132.jpg

▲平面布置图

|  客厅  |

20220421_164600_133.jpg

客厅打破传统布局,不以电视为客厅中心,打造成阅读氛围的亲子空间。两面整墙的书柜,提供巨量的收纳空间,奠定了客厅的书香氛围。

20220421_164600_134.jpg

软装上选择浅色调的沙发,摒弃茶几的设计,搭配同色系的地毯,空间温柔又舒适。

20220421_164600_135.jpg

阳台区域采用抬高地台的设计,并且将阳台封闭起来。白色纱帘保证空间的隐私性,还能满足整个室内的采光性。

|  餐厅  |

20220421_164600_136.jpg

餐厅选择简洁的原木长桌,即可满足用餐需求,也可以作为书桌使用。餐桌后面是钢琴区,顶部加装轨道灯,灯光亮起,钢琴响起,氛围温馨又美妙。

20220421_164600_137.jpg

餐桌顶部设计有两盏吊灯,无论就餐或是看书,都非常的温馨。

|  厨房  |

20220421_164600_138.jpg

厨房采用L型布局,保证了充足的操作空间与储物空间。温润的原木橱柜,采用无手拉设计,视觉上干净,简洁,大方。

|  主卧  |

20220421_164600_139.jpg

主卧以草绿色为主,呈现出清新舒适空间感。床尾利用玻璃推拉门打造一个步入式衣帽间,节省空间又通透大方。

|  儿童房  |

20220421_164600_140.jpg

儿童房空间的色系比较活跃,蓝色乳胶漆通刷两面墙,给予空间一种阳光向上的积极态度。

20220421_164600_141.jpg

考虑到空间的储物需求和儿童房的基本功能,利用墙体打造书柜+书桌+衣柜的设计,节省空间,还空出了足够的活动区。

|  多功能区  |

20220421_164600_143.jpg

多功能房是一间大次卧隔离出来的,采用玻璃推拉门为隔断,节省空间又使用方便。

20220421_164600_144.jpg

此区域可以作为屋主的休闲娱乐区,空间以白色为主色调,没有过多的装饰品,窗户处搭配的是白色百叶帘,透过的光影打在原木地板上,非常漂亮。

|  次卧  |

20220421_164600_145.jpg

次卧设计的比较温暖,空间以简约为主,墙面采用奶油色乳胶漆通刷,柔和雅致、简洁又温馨。

考虑到收纳问题,以及空间的整洁性,床尾利用墙体打造一体式的通顶大衣柜。

|  卫生间  |

20220421_164600_146.jpg

主卫空间整体色系比较简约,墙面通刷微水泥,保留了更多自然的质感,地面选择一体化的白色打底的花纹地砖,既美观又易清洁。

20220421_164600_147.jpg

次卫空间采用浴室柜外置的设计手法,将空间干湿分离,使用更便利舒适。

装修预算不够?快来申请装修贷款!月息低至2.5厘。帮忙装修网为解决业主的装修资金难题,特与银行合作推出“装修贷”,一站轻松办理:18824725983 吴先生

长按二维码关注"帮忙装修网",了解更多装修资讯↓↓↓

或拨打免费热线:13822775923

已成功招标53521