--   |  设为首页

帮忙装修网

中山

[切换]

中山优秀装修案例推荐:现代灰色系优雅大平层装修

来自:中山帮忙装修网 日期:2021-10-28 11:32:04 173485 次 分享到:
导读:
整体环境为明亮、自然的轻色调,却是由中性质材构筑而成,像是石材饰面和混凝土的粗犷为主导。中山帮忙装修网公司分享优秀装修案例

未来主义设计

这套住宅位于曼谷

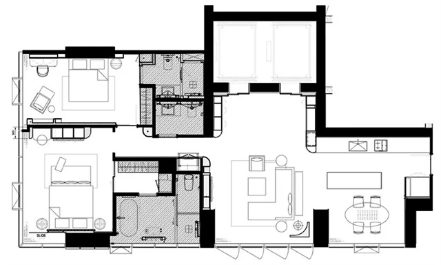
面积:118.8㎡套内

格局:2 房 2 厅 2 卫 

居住人数:2 大 

由   Spacecraft co.,ltd 设计

位于泰国曼谷市指标性的高楼住宅

委由泰国设计团队所打造

将屋主的个性和设计品味

融入住宅为主要需求

空间不只承载生活日常

也成为足以彰显个人风格

整体环境为明亮、自然的轻色调

却是由中性质材构筑而成

像是石材饰面和混凝土的粗犷为主导

并与哑光白色层压板的光滑度

并出极富有质感的新火花

透过反差的技巧,为风格带来了独特的趣味性

公共领域布局为开放式

流畅地将门厅、起居区、用餐区和储藏室连接在一起

所有收纳功能都隐而不显地

成为装饰立面之下的柜体

包括鞋柜、洗衣机和壁橱在内的存储空间

也利用水磨石瓷砖和镜子

覆盖了高楼层建筑的大型结构柱

缓冲了视觉之际,在 LED 直线灯条的结合之下

形塑出轻巧又带有些许未来主义的风格


装修预算不够?快来申请装修贷款!月息低至2.5厘。帮忙装修网为解决业主的装修资金难题,特与银行合作推出“装修贷”,一站轻松办理:18824725983 吴先生

 长按二维码关注"帮忙装修网",了解更多装修资讯↓↓↓


或拨打免费热线:13822775923

已成功招标53521